הנחיות לתכנון הנדסי ואדריכלי למגרשי ספורט
הקמת מגרש ספורט מקצועי היא משימה הנדסית רב-תחומית. כדי להבטיח מתקן בטיחותי, עמיד ותקני, יש לפעול על פי רצף תכנוני סדור המשלב יועצים מקצועיים ותוכניות מפורטות.
שלב התכנון המוקדם: אדריכלות והנדסה
לפני תחילת העבודות בשטח, מומלץ להפיק תוכניות עבודה הכוללות:
תוכנית העמדה (Layout)
הגדרת מיקום המגרש ביחס לסביבה, מיקום מתקני ספורט מקצועיים, מרחקי בטיחות, מיקום גדרות ועמודי תאורה , תכנון כיווני אור (מומלץ ציר צפון-דרום למניעת סנוור שחקנים) ודרכי גישה למגרש.
תוכנית פיתוח ושיפועים
תכנון מפלסים מדויק המבטיח ניקוז טבעי של המשטח.
היוועצות בצוות יועצים
יועץ קרקע
בחינת סוג הקרקע (חרסיתית, סלעית וכד') לקביעת עובי המצעים וסוג הביסוס למניעת שקיעות עתידיות.
קונסטרוקטור
תכנון הנדסי של יסודות עמודי התאורה, הסלים וחומות התמך במידת הצורך.
יועץ תאורה
הפקת דיאגרמת "פוטומטריה" להבטחת פיזור אור אחיד ומניעת הצללות במרכז המגרש.
יועץ מגרשי ספורט
הגורם המקצועי האחראי על סינכרון כלל התכניות אל מול תקני הספורט העדכניים. היועץ מוודא שדרישות המשחק אינן מתנגשות עם התכנון ההנדסי, וכי המגרש יקבל את אישורי הבטיחות הנדרשים עם סיום ההקמה.
מידות וסקיצות לתכנון מגרשי (לפי תקן ישראל)
להלן המידות הרשמיות למגרשי חוץ. יש לוודא ששטח המילוט (Run-off) פנוי מכל מכשול.
מגרש כדורסל
- שטח משחק: 28מ' אורך \ 15מ' רוחב
- שטח נדרש (כולל מילוט): 32 מ' אורך \ 19מ' רוחב
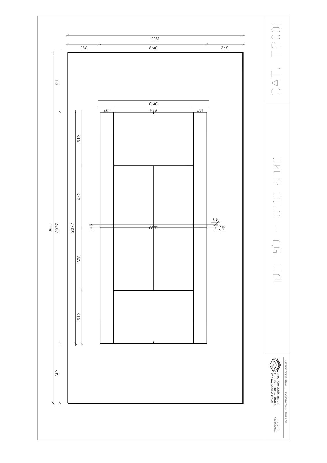
מגרש טניס
- שטח משחק (זוגות): 23.77 מ' אורך \ 10.97 מ' רוחב
- שטח נדרש (כולל מילוט): 36 מ' אורך \ 18 מ' רוחב
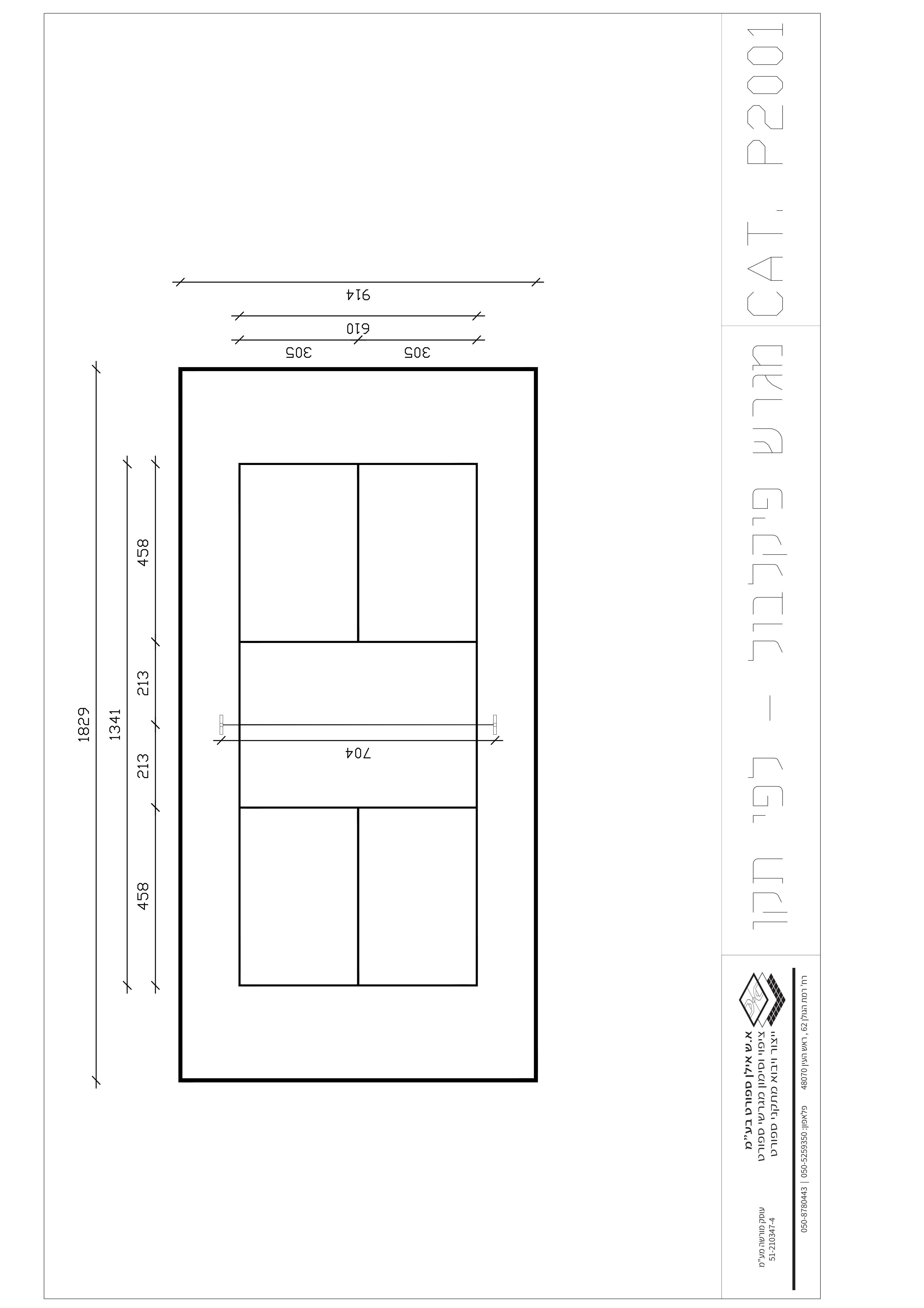
מגרש פיקלבול (Pickleball)
- שטח משחק: 13.4 מ' אורך \ 6.1 מ' רוחב
- שטח נדרש (כולל מילוט): 18 מ' אורך \ 9 מ' רוחב
מגרש כדורעף
- שטח משחק: 18 מ' אורך \ 9 מ' רוחב
- שטח נדרש (כולל מילוט): 24 מ' אורך \ 15 מ' רוחב
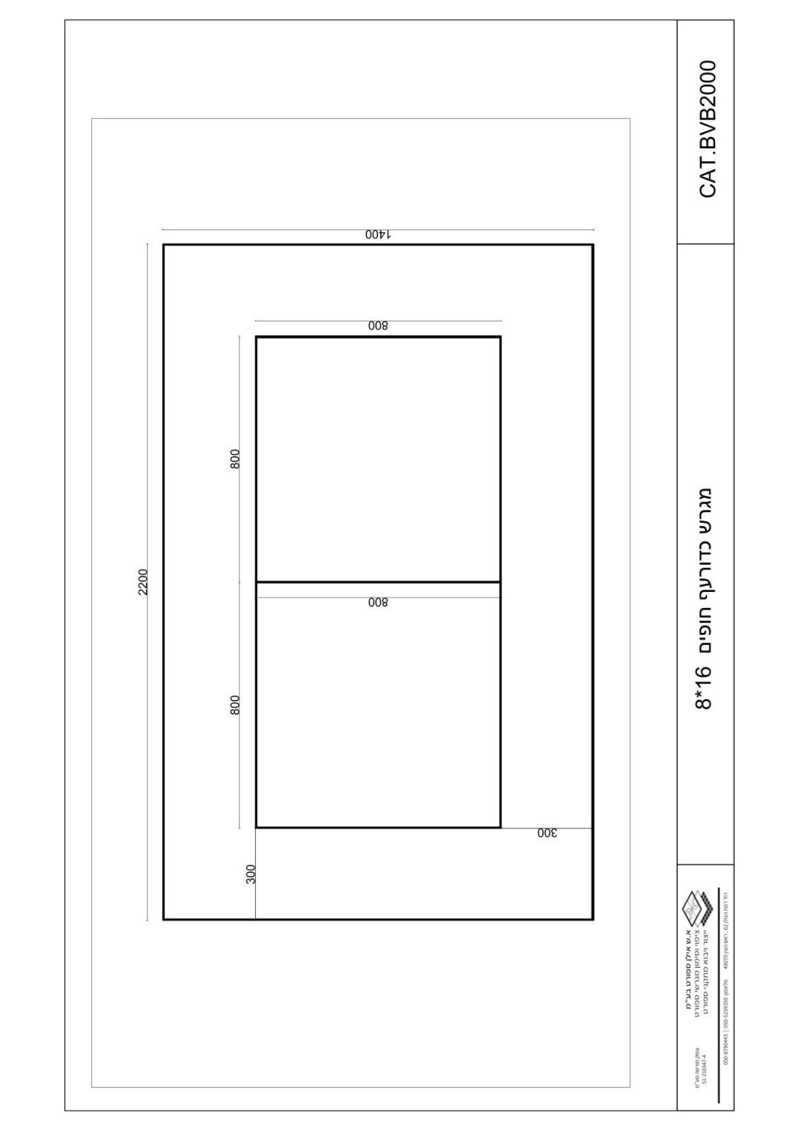
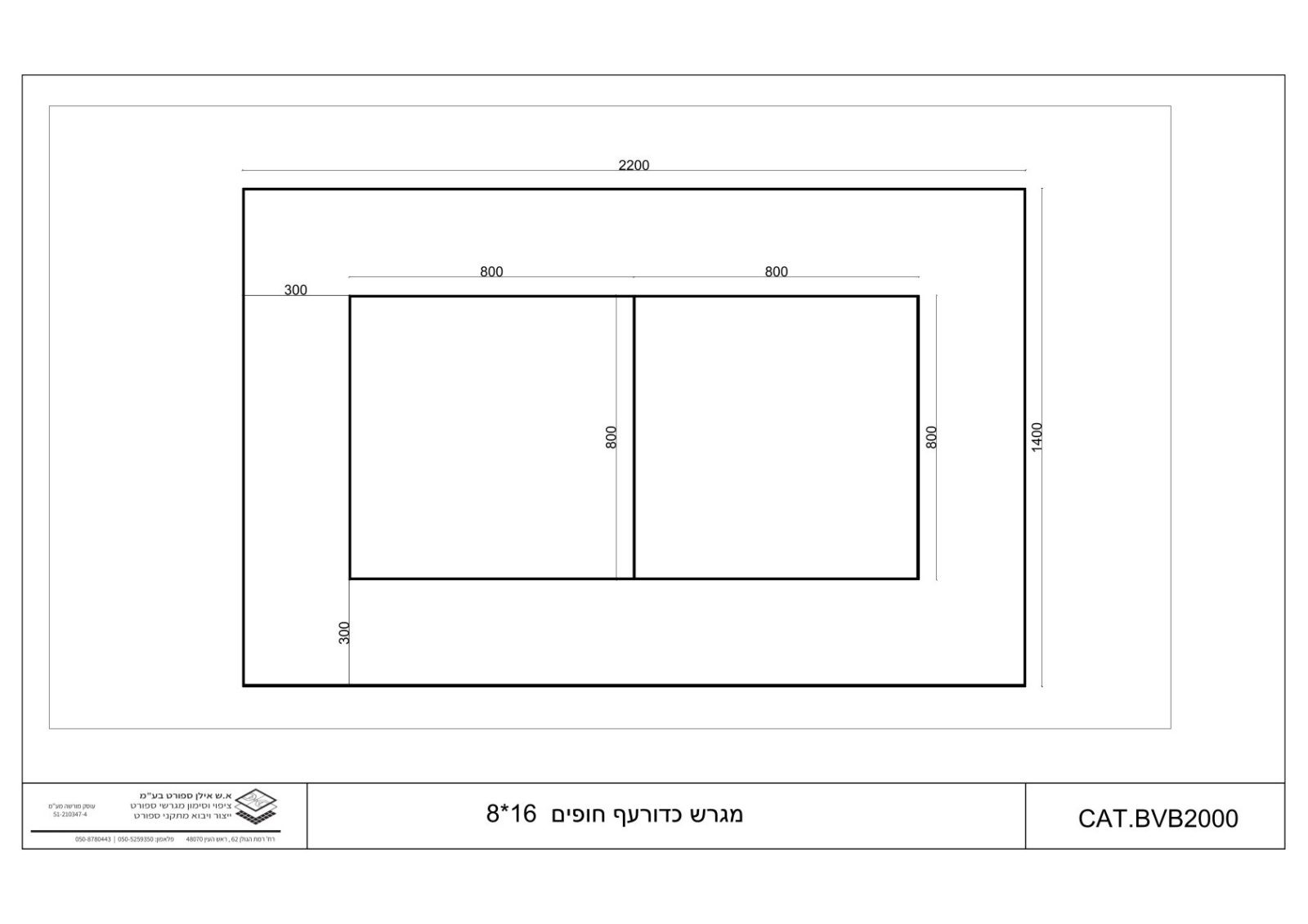
מגרש כדורעף חופים
- שטח משחק: 16 מ' אורך \ 8 מ' רוחב
- שטח נדרש (כולל מילוט): 22 מ' אורך \ 14 מ' רוחב
מגרש קטרגל
- שטח משחק: מינימום 25 מ' אורך \ 16 מ' רוחב עד מקסימום 42 מ' אורך \ 25 מ' רוחב .
- שטח מילוט: מינימום 2 מטרים מקווי החוץ והשער
מגרש פאדל
- שטח משחק: 20 מ' אורך \ 10 מ' רוחב
- גובה פנוי : 8 מ' לפחות
- ללא שטח מילוט
מגרש משולב
- שטח משחק: 44 מ׳ אורך / 32.50 מ׳ רוחב
- שילוב מגרש כדורסל, כדורגל, טניס וכדורעף
תשתית, שיפועים וניקוז: הבסיס ליציבות המגרש
השלב הקריטי ביותר בתכנון הוא הכנת התשתית. טעויות בשלב זה יגרמו לשקיעות, סדקים והצטברות מים שיפסלו את המגרש לשימוש.

סוג התשתית
לרוב מבוססת על שכבת מצע מהודק ומעליו שכבת אספלט או בטון מזוין. עובי התשתית נקבע לפי סוג הקרקע (קרקע עובדת דורשת ביסוס עמוק יותר).

ניקוז ושיפועים
על פי התקן, למגרשי חוץ נדרש שיפוע דו-צדדי או חד-צדדי של 0.8% עד 1%.
המשמעות: שיפוע של 1 ס"מ על כל 1 מטר אורך.
המטרה: פינוי מהיר של מי גשמים אל תעלות ניקוז היקפיות, מניעת "שלוליות" ופגיעה בציפוי האקרילי של המגרש.
המטרה: פינוי מהיר של מי גשמים אל תעלות ניקוז היקפיות, מניעת "שלוליות" ופגיעה בציפוי האקרילי של המגרש.

מישוריות
הסטייה המקסימלית המומלצת היא בדרך כלל עד 3 מ"מ תחת סרגל של 3 מטרים.
גידור היקפי
הגידור אינו משמש רק לתיחום, אלא כאלמנט בטיחותי הסופג את אנרגיית הכדור והשחקן.
סוג הרשת
לפי צרכי המגרש. בדרך כלל משתמשים ב3 סוגי גדרות עיקריים: גדר קלה, גדר ברזל וגדר ברזל מצופה PVC.
גובה הגידור
לרוב 4 מטרים מאחורי השערים/סלים ולפחות 2 או 3 מטרים בצידי המגרש. בטיחות: לכל סוג גדר נדרשת קונסטרוקציה שונה למניעת התרוממות הרשת. יש לוודא שאין קצוות חדים או ברגים בולטים כלפי פנים המגרש. כמו כן מומלץ להקפיד על מרחקי הבטיחות הנדרשים.
תאורת מגרשים: פיזור אחיד ומניעת סנוור
תאורה לקויה לפגוע בביצועי המשחק ולגרום לאי נוחות סביבתית. התכנון מבוסס על רמת הארה (Lux) בהתאם לסוג המשחק ולפי מיקום עמודים.
עוצמת הארה
מגרש חובבני דורש כ-200-300 לוקס, בעוד מגרש תחרותי דורש 500 לוקס ומעלה.
גובה העמודים
מומלץ על גובה של 6-8 מטרים לפחות כדי לאפשר פיזור אור אחיד ולמנוע סנוור של השחקנים במבט כלפי מעלה.
טכנולוגיה
שימוש בגופי תאורה מותאמים לספורט לפי המלצת יועץ תאורה מוסמך.
מתקני ספורט ובטיחות אביזרים
כל מתקן קבוע (סל, שער, עמוד טניס וכו') חייב לכל הפחות להיות מתאים לתקן הישראלי למתקני ספורט - ת"י 5515 למתקני ספורט.
עיגון
מתקנים קבועים חייבים להיות מעוגנים ליסודות בטון עמוקים שאינם בולטים מעל פני השטח.
מיגון
כל מתקן מחויב במגן ספוג בטיחותי עד גובה משתנה בהתאם לכל מתקן.
טבעות ושערים
שימוש בטבעות קפיציות למניעת עומס יתר על לוח הסל, ושערים ללא פינות חדות המקובעים לקרקע למניעת התהפכות.
בדיקת מעבדה
בסוף הפרויקט על הקבלן המבצע להגיש בדיקה החתומה ע"י מעבדה מוסמכת לבטיחות המתקנים.
מערכות ציפוי אקריליות: מפרט וביצוע
הציפוי האקרילי הוא שכבה המגדירה את איכות המשחק, בטיחות המשתמש ועמידות התשתית לאורך זמן. יישום המערכת דורש דיוק רב והתאמה כימית לסוג המשטח.
התאמה לסוג התשתית

תשתית אספלט
דורשת תקופת אשפרה (ייבוש) של לפחות 14 יום להתנדפות שמנים לפני היישום ושטיפה בלחץ מים. האספלט מספק גמישות טבעית המשתלבת היטב עם המערכת האקרילית.


